giudiziariagiudiziariaTribunale di ALESSANDRIAESECUZIONI CIVILI IMMOBILIARIESPROPRIAZIONE IMMOBILIARE (CARTABIA)3122023Delegato alla venditaElisa mariaRovettoRVTLMR78E63A052Rrovetto@mrlex.eu34743042000131261601truetrue2390550LOTTO UNICOIMMOBILIIMMOBILE RESIDENZIALEVia Kennedy, 15044 Quargnento AL, Italia15044QuargnentoAlessandriaPiemonteItaliaFabbricato in fase di costruzione con area di pertinenza esclusiva a due piani fuori terra e un piano interrato. Al piano terra sono presenti: un portico, un ingresso/soggiorno, una cucina abitabile, un ripostiglio, uno studio, un bagno, un disimpegno, una camera con cabina armadi. Al piano primo sono presenti: due camere, due bagni, un corridoio ed un terrazzo. Al piano interrato sono presenti un locale autorimessa, un locale caldaia, una cantina, un bagno e un ampio locale di sgombero.3085577IMMOBILE RESIDENZIALEFABBRICATO IN CORSO DI COSTRUZIONEVia Kennedy, Quargnento AL, Italia15044QuargnentoAlessandriaPiemonteItaliaFabbricato residenziale unifamiliare in fase di costruzione libero su quattro lati con area di pertinenza esclusiva a due piani fuori terra e un piano interrato. L'intero terreno è recintato ed è presente un cancello per l'ingresso carraio ed un cancelletto per quello pedonale. Al piano terra sono presenti un portico su tre lati dell'abitazione, un ampio ingresso/soggiorno, una cucina abitabile, un ripostiglio, uno studio, un bagno, un disimpegno, una camera con cabina armadi. Al piano primo si accede con una scala interna a doppia rampa e sono presenti due camere, due bagni, un corridoio ed un terrazzo in parte coperto. Al piano interrato si accede mediante una rampa esterna e sono presenti un ampio locale autorimessa, un locale caldaia, una cantina, un bagno, un ampio locale di sgombero e una scala doppia rampa per l'accesso ai locali abitativi del piano terra.251394LIBER3085578ALTRA CATEGORIATERRENOVia Kennedy15044QuargnentoAlessandriaPiemonteItaliaseminativo251395LIBER192026-06-24T16:00:00SENZA INCANTOPRESSO IL VENDITORECorso Felice Cavallotti, 40, 15121 Alessandria AL, Italia15121AlessandriaAlessandriaPiemonteItalia78.975,0059.231,251.000,002026-06-23T12:00:00sito pubblicitahttps://www.astalegale.nethttps://www.astalegale.netsito pubblicitahttps://www.rivistaastegiudiziarie.ithttps://www.rivistaastegiudiziarie.itsito pubblicitahttps://www.canaleaste.ithttps://www.canaleaste.itsito pubblicitahttps://www.asteannunci.ithttps://www.asteannunci.itsito pubblicitahttps://www.astegiudiziarie.ithttps://www.astegiudiziarie.itsito pubblicitahttps://www.asteavvisi.ithttps://www.asteavvisi.it2026-02-10
Fabbricato in corso di costruzione in asta: Quargnento, Via kennedy, 15044 quargnento al, italia
Trib. di Alessandria, Proc. 312/2023,
Lotto UNICO
Salva lotto
Cod. Inserzione: 4525692
Dati del bene: Fabbricato in corso di costruzione
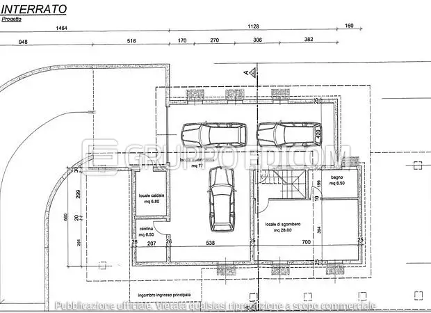
Fabbricato in corso di costruzione
Descrizione:
Fabbricato residenziale unifamiliare in fase di costruzione libero su quattro lati con area di pertinenza esclusiva a due piani fuori terra e un piano interrato. L'intero terreno è recintato ed è presente un cancello per l'ingresso carraio ed un cancelletto per quello pedonale. Al piano terra sono presenti un portico su tre lati dell'abitazione, un ampio ingresso/soggiorno, una cucina abitabile, un ripostiglio, uno studio, un bagno, un disimpegno, una camera con cabina armadi. Al piano primo si accede con una scala interna a doppia rampa e sono presenti due camere, due bagni, un corridoio ed un terrazzo in parte coperto. Al piano interrato si accede mediante una rampa esterna e sono presenti un ampio locale autorimessa, un locale caldaia, una cantina, un bagno, un ampio locale di sgombero e una scala doppia rampa per l'accesso ai locali abitativi del piano terra.
Indirizzo
Via kennedy, quargnento al, italia
Provincia
Alessandria
Comune
Quargnento
Regione
Piemonte
Nazione
Italia
Disponibilita
Libero
Sezione
Foglio
Particella
Subparticella
Subalterno
Subalterno2
Graffato
25
1394
Dati del bene: Terreno
Terreno
Descrizione:
seminativo
Indirizzo
Via kennedy
Provincia
Alessandria
Comune
Quargnento
Regione
Piemonte
Nazione
Italia
Superficie
19
Disponibilita
Libero
Sezione
Foglio
Particella
Subparticella
Subalterno
Subalterno2
Graffato
25
1395
Dati procedura
Tribunale
Alessandria
Procedura nr
312/2023
Rito
ESPROPRIAZIONE IMMOBILIARE (CARTABIA)
Tipologia
immobiliare
Lotto nr
UNICO
Delegato alla vendita
Elisa maria Rovetto
Elisa maria Rovetto
Tel. 0131261601
Cel. 3474304200
rovetto@mrlex.eu
Valore perizia
187.200,00
Pubblicato online il
10/02/2026 13:15
Dati sulla vendita
Data vendita
24/06/2026 - 16:00
Prezzo base
78.975,00
Offerta minima
€ 59.231,25
Valore in aumento in caso di gara
€ 1.000,00
Per partecipare alla vendita
Tipo vendita
SENZA INCANTO
Termine presentazione domanda
23/06/2026 12:00
Luogo della vendita
Studio del Professionista Delegato e Custode Avv. Elisa Maria Rovetto in Alessandria, Corso Felice Cavallotti n. 40
Data e ora apertura buste
24/06/2026 16:00
Modalità di deposito offerte
Studio del Professionista Delegato e Custode Avv. Elisa Maria Rovetto in Alessandria, Corso Felice Cavallotti n. 40
Informiamo che i dati pubblicati nella presente scheda vengono trasmessi ed
acquisiti dal portale vendite pubbliche nel rispetto del D.M. 5.12.2017 e la
successiva pubblicazione delle specifiche tecniche nella G.U. N.16 del
20-1-2018 – che attesta la piena funzionalità dei servizi del portale delle
vendite pubbliche. La società non si assume alcuna responsabilità in caso di
difformità dei dati trasmessi dal suddetto portale né in relazione alla
documentazione ufficiale fornita dagli organi della procedura e/o in
relazione alla mancata omissione di dati sensibili come da provvedimento del
Garante per la protezione dei dati personali G.U. n. 47 del 25/02/2008 e da
normativa GDPR, regolamento (UE) n. 2016/679.
Puoi utilizzare questo modulo per inviare una richiesta al fine di esercitare i tuoi diritti
di
protezione
dei
dati. Le informazioni che fornisci in questo modulo verranno trattate esclusivamente per verificare la
tua
richiesta.
Per ulteriori dettagli su come utilizziamo e proteggiamo le tue informazioni personali,
consulta
la nostra
privacy policy.