Fabbricato in attesa di dichiarazione (circolare 1/2009) in asta: Ponte san pietro, Via sant'anna, 27, 24036 ponte san pietro bg, italia
Trib. di Bergamo, Proc. 428/2023,
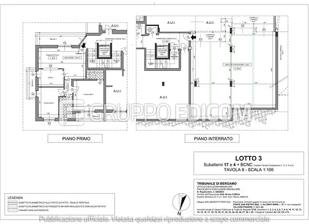
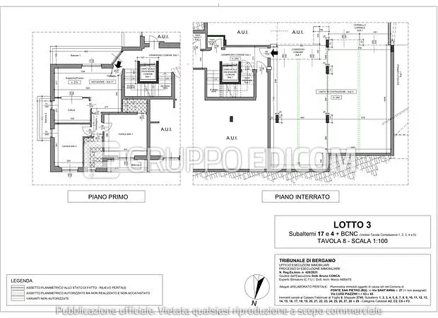
Lotto 3
Salva lotto
Cod. Inserzione: 4522808
Dati del bene: Fabbricato in attesa di dichiarazione (circolare 1/2009)
Fabbricato in attesa di dichiarazione (circolare 1/2009)
Descrizione:
Unità immobiliare in corso di costruzione sita al piano interrato. Si fa presente che l’immobile nel suo complesso è accatastato con la categoria F3 (immobile in corso di costruzione).
Indirizzo
Via sant'anna, 27, 24036 ponte san pietro bg, italia
Provincia
Bergamo
Comune
Ponte San Pietro
Regione
Lombardia
Nazione
Italia
Piano
S1
Sezione
Foglio
Particella
Subparticella
Subalterno
Subalterno2
Graffato
PO
6
2745
4
Dati del bene: Abitazione di tipo civile
Abitazione di tipo civile
Descrizione:
appartamento sito al primo piano composto da soggiorno-pranzo, cottura, due camere di cui una con locale WC, disimpegno, un bagno e tre balconi
Indirizzo
Via sant'anna, 27, 24036 ponte san pietro bg, italia
Provincia
Bergamo
Comune
Ponte San Pietro
Regione
Lombardia
Nazione
Italia
Superficie
86
Piano
1
Vani
5.5
Sezione
Foglio
Particella
Subparticella
Subalterno
Subalterno2
Graffato
PO
6
2745
17
Dati procedura
Tribunale
Bergamo
Procedura nr
428/2023
Rito
ESPROPRIAZIONE IMMOBILIARE (CARTABIA)
Tipologia
immobiliare
Lotto nr
3
Custode
Simone Minola
Simone Minola
Tel. 0350779384
simoneminola@virgilio.it
Delegato alla vendita
Simone Minola
Simone Minola
Tel. 0350779384
simoneminola@virgilio.it
Pubblicato online il
19/09/2025 00:00
Dati sulla vendita
Data vendita
10/12/2025 - 15:00
Prezzo base
140.058,75
Offerta minima
€ 105.044,06
Valore in aumento in caso di gara
€ 1.000,00
Per partecipare alla vendita
Tipo vendita
Vendita delegata professionista
Termine presentazione domanda
09/12/2025 12:00
Luogo della vendita
La gara verrà svolta in modalità telematica tramite il portale www.astetelematiche.it
Modalità di deposito offerte
Le offerte dovranno essere depositate in modalità telematica
Punti di interesse
Informiamo che i dati pubblicati nella presente scheda vengono trasmessi ed
acquisiti dal portale vendite pubbliche nel rispetto del D.M. 5.12.2017 e la
successiva pubblicazione delle specifiche tecniche nella G.U. N.16 del
20-1-2018 – che attesta la piena funzionalità dei servizi del portale delle
vendite pubbliche. La società non si assume alcuna responsabilità in caso di
difformità dei dati trasmessi dal suddetto portale né in relazione alla
documentazione ufficiale fornita dagli organi della procedura e/o in
relazione alla mancata omissione di dati sensibili come da provvedimento del
Garante per la protezione dei dati personali G.U. n. 47 del 25/02/2008 e da
normativa GDPR, regolamento (UE) n. 2016/679.
Puoi utilizzare questo modulo per inviare una richiesta al fine di esercitare i tuoi diritti
di
protezione
dei
dati. Le informazioni che fornisci in questo modulo verranno trattate esclusivamente per verificare la
tua
richiesta.
Per ulteriori dettagli su come utilizziamo e proteggiamo le tue informazioni personali,
consulta
la nostra
privacy policy.