Abitazione di tipo economico in asta: Venezia, Loc. mestre, viale san marco, 80/b

Trib. di Venezia, Proc. 106/2025, Lotto UNICO
Salva lotto
Cod. Inserzione: 2376677
  • placeholder image
  • placeholder image
  • placeholder image
  • placeholder image
  • placeholder image
  • placeholder image
Dati del bene: Abitazione di tipo economico
Abitazione di tipo economico
Descrizione:
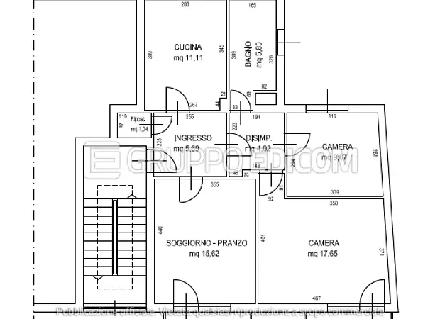
Appartamento di complessivi mq 70,65 al piano secondo (dotato di un magazzino al piano quinto) con pertinenziale garage al piano terra, nel “Condominio Viale San Marco 80/A 80/B”, si compone di ingresso, soggiorno – pranzo, cucina, ripostiglio, bagno, camera singola, camera matrimoniale, disimpegno, le due terrazze hanno una superficie di mq 3,66 cadauna. Il magazzino al piano quinto ha una superficie di mq 3,07. Il garage al piano terra ha una superficie di mq 12,28. Occupato dagli esecutati.
Indirizzo
Loc. mestre, viale san marco, 80/b
Provincia
Venezia
Comune
Venezia
Regione
Veneto
Nazione
Italia
Piano
2
Vani
5.5
Sezione Foglio Particella Subparticella Subalterno Subalterno2 Graffato
135 2023 6
135 2023 18
Dati procedura
Tribunale
Venezia
Procedura nr
106/2025
Rito
ESPROPRIAZIONE IMMOBILIARE (CARTABIA)
Tipologia
immobiliare
Lotto nr
UNICO
Custode
Federica Thomas
Federica Thomas
Tel. 041961448
federica.thomas.1@gmail.com
Delegato alla vendita
Federica Thomas
Federica Thomas
Tel. 041961448
federica.thomas.1@gmail.com
Giudice
Silvia Bianchi
Silvia Bianchi
Valore perizia
€ 132.000,00
Pubblicato online il
14/01/2026 20:45
Dati sulla vendita
Data vendita
29/04/2026 - 10:00
Prezzo base
€ 132.000,00
Offerta minima
€ 99.000,00
Valore in aumento in caso di gara
€ 2.000,00
Per partecipare alla vendita
Tipo vendita
SENZA INCANTO
Termine presentazione domanda
28/04/2026 12:00
Luogo della vendita
Presso il Delegato Avv. Federica Thomas, con Studio in Venezia, Mestre, Galleria Matteotti n. 9
Modalità di deposito offerte
Con sola modalità sincrona telematica ex art. 21 D.M. n. 32/2015
Prenota una visita
Punti di interesse

Informiamo che i dati pubblicati nella presente scheda vengono trasmessi ed acquisiti dal portale vendite pubbliche nel rispetto del D.M. 5.12.2017 e la successiva pubblicazione delle specifiche tecniche nella G.U. N.16 del 20-1-2018 – che attesta la piena funzionalità dei servizi del portale delle vendite pubbliche. La società non si assume alcuna responsabilità in caso di difformità dei dati trasmessi dal suddetto portale né in relazione alla documentazione ufficiale fornita dagli organi della procedura e/o in relazione alla mancata omissione di dati sensibili come da provvedimento del Garante per la protezione dei dati personali G.U. n. 47 del 25/02/2008 e da normativa GDPR, regolamento (UE) n. 2016/679.